StruEngineers provided specialized precast design and detailing for UP13 – Hormitec, a high-security correctional facility located in Argentina. The project demanded a sophisticated master plan focused on secure circulation, surveillance, and controlled access. The facility features a complex, symmetrical layout with multiple cell blocks arranged around a central control hub and reinforced by roadside security towers.
Buildings & Infrastructure
The scope of work covered five primary buildings and several critical security structures:
- Primary Cell Blocks: Buildings P1, P2, Q, and N.
- Symmetrical Expansion: Mirrored versions of Buildings P1 and P2.
- Central Control Hub: One central tower physically connecting all five primary buildings to facilitate centralized surveillance.
- Perimeter Security: Two independent security towers strategically positioned along the facility’s roadside.
Structural System & Standardized Elements
To meet the rigorous requirements of a correctional environment—including structural robustness, high durability, and security compliance—StruEngineers implemented a standardized precast system. The project was optimized for repetition and speed, utilizing:
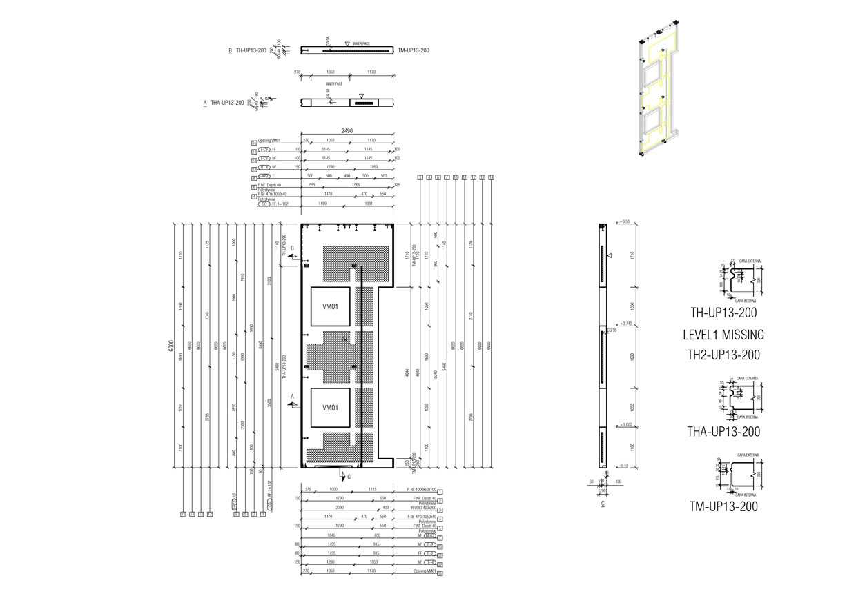
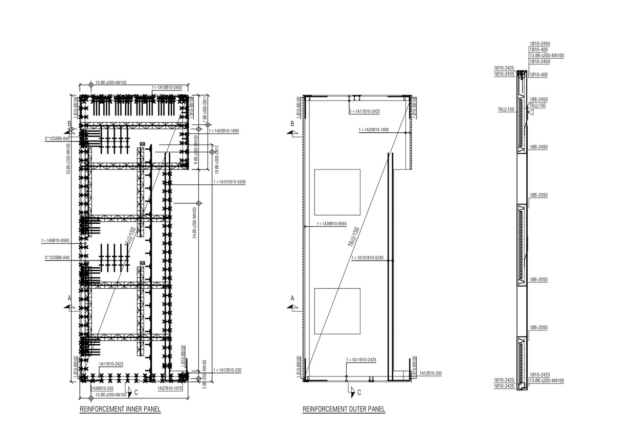
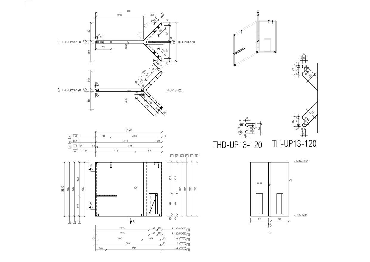
- Sandwich Walls (113 units): Providing essential thermal insulation and high-strength security.
- Precast Slabs (96 units): Engineered for rapid floor and roof assembly.
- Solid Walls (26 units): Used for internal partitioning and high-impact structural zones.
Technical Precision & Tolerances
Given the repetitive nature of cell blocks and the mirrored layout of the buildings, precision was paramount:
- Surface Definition: Elements featured smooth faces for visible interior surfaces and mould faces for controlled casting quality.
- Tolerance Strategy: A 20 mm tolerance was strictly maintained to ensure that original and mirrored elements were perfectly interchangeable and to facilitate smooth installation on-site.
IMPACT Models
Digital Workflow & Cloud Collaboration
Unlike more traditional file-exchange projects, the UP13 project utilized a modern cloud-based workflow:
- Software Stack: The team utilized IMPACT BIM for modeling and detailing, with AutoCAD used for final shop drawing preparation.
- Real-Time Coordination: The cloud platform allowed for seamless data sharing and live coordination between the offshore and onshore teams.
- Deliverables: Comprehensive CAD (DWG) and PDF drawing sets were delivered, fully aligned with the client’s internal documentation standards.
Shop Drawings
Project Performance & Delivery
Managed by a specialized team of two experts, the project highlights StruEngineers’ ability to handle complex international requirements:
- Timeline: The entire scope, from initial drawing receipt to final delivery, was completed in just 2 months.
- Overcoming Barriers: The team successfully managed language differences (interpreting Spanish-language drawings and comments) and time zone variations through structured communication and clear, detailed documentation.
- Impact: The use of precast technology and BIM modeling ensured that the high-security requirements were met with mathematical precision, allowing for a fast and secure construction phase.












